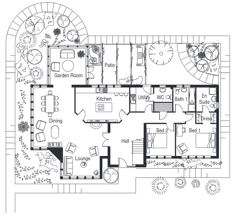
The Sversjon design example is based on a captivating modern, open planned villa, which is bathed in natural light from the large feature windows. The open plan lounge kitchen and dining room, flow through to the ideally positioned garden room.
Also on the ground floor, you have the master bedroom with en-suite and dressing room, a second bedroom, and a good-sized bathroom. On the first floor you have two further bedrooms and a family bathroom.





