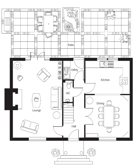
This Ladywell design example is based on a traditional Georgian style farmhouse. From the stone entrance portico this delightful build hosts a generously sized family lounge dining room and kitchen, which could overlook a feature open patio area across the rear.
The Ladywell has four bedrooms, one on suite with the option of attic rooms and an ample sized family bathroom.
This is really the perfect family home, with lots of space.





